Building land Šmrika
Price:
m2
Šmrika, Kraljevica
Basic information
Location:
Šmrika, Kraljevica
Year of construction:
Living area:
m2
Outer surface:
399 m2
Tip:
Total number of floors of the building:
Pozicija poslovnog prostora:
Kat:
Number of floors:
Tip kuće:
Vrsta:
Number of rooms:
Broj kupaonica:
Furnishing and condition:
Parking space:
Energy class:
Possibility of replacement:
but
Agency service:
Garage:
Garden:
Repository:
Heating:
Ownership documentation:
Registreret
Orientation:
Description of the property
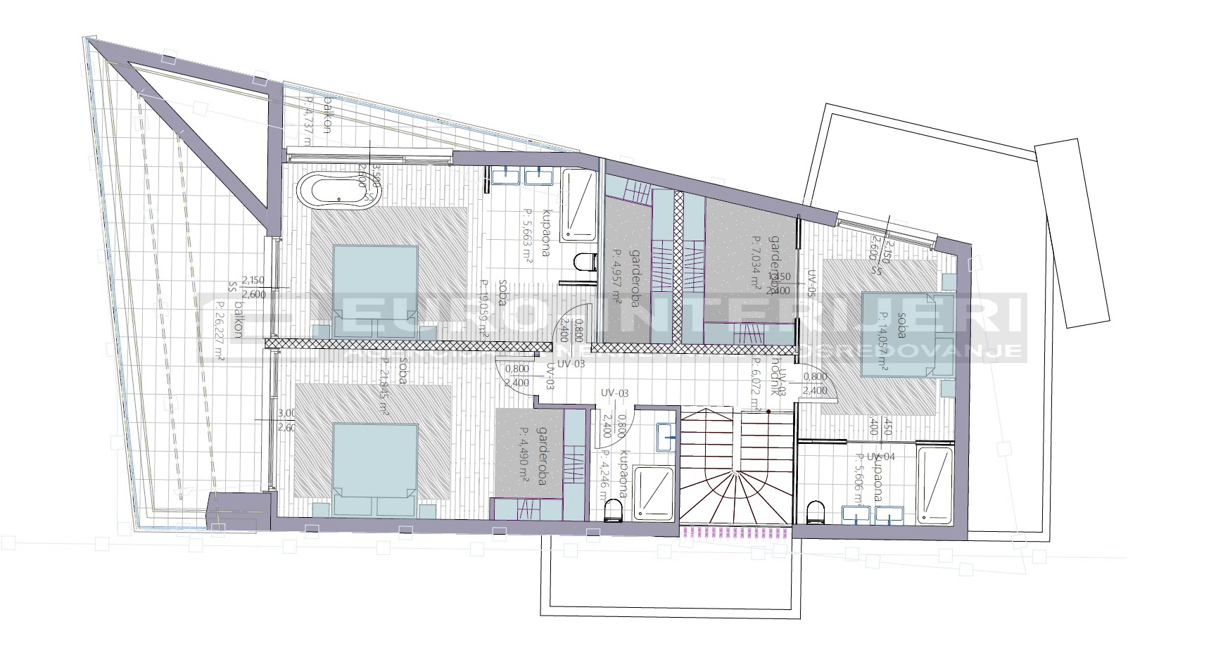
We sell a building plot with a valid building permit for the construction of a free-standing residential building with a canopy and an outdoor pool.
The land area is 399 m2.
The land offers a sea view.
Smurf is a populated place within the city of Kraljevica.
Title deed 1/1, no encumbrance.
The buyer does not pay for agency service.
DO YOU WANT TO SELL YOUR PROPERTY?
AGENCY SERVICE WHEN SELLING AN APARTMENT FROM 2%!
Más de 25 años de experiencia en la venta de apartamentos!
Fast and safe apartment sale!
Contact us with confidence!
Location on the map
Residential units and commercial premises
Roomness
Price
Stato
No items found.
Licensed Real Estate Agent

.jpg)







.jpg)
.jpg)
-p-500.jpg)
-p-500.jpg)
