Rudeš, Project with building permit for 3 apartments
Basic information
Description of the property
Zagreb — Rudes
Land with an old house for demolition
A project with a building permit for the construction of a semi-detached residential building with a height of:
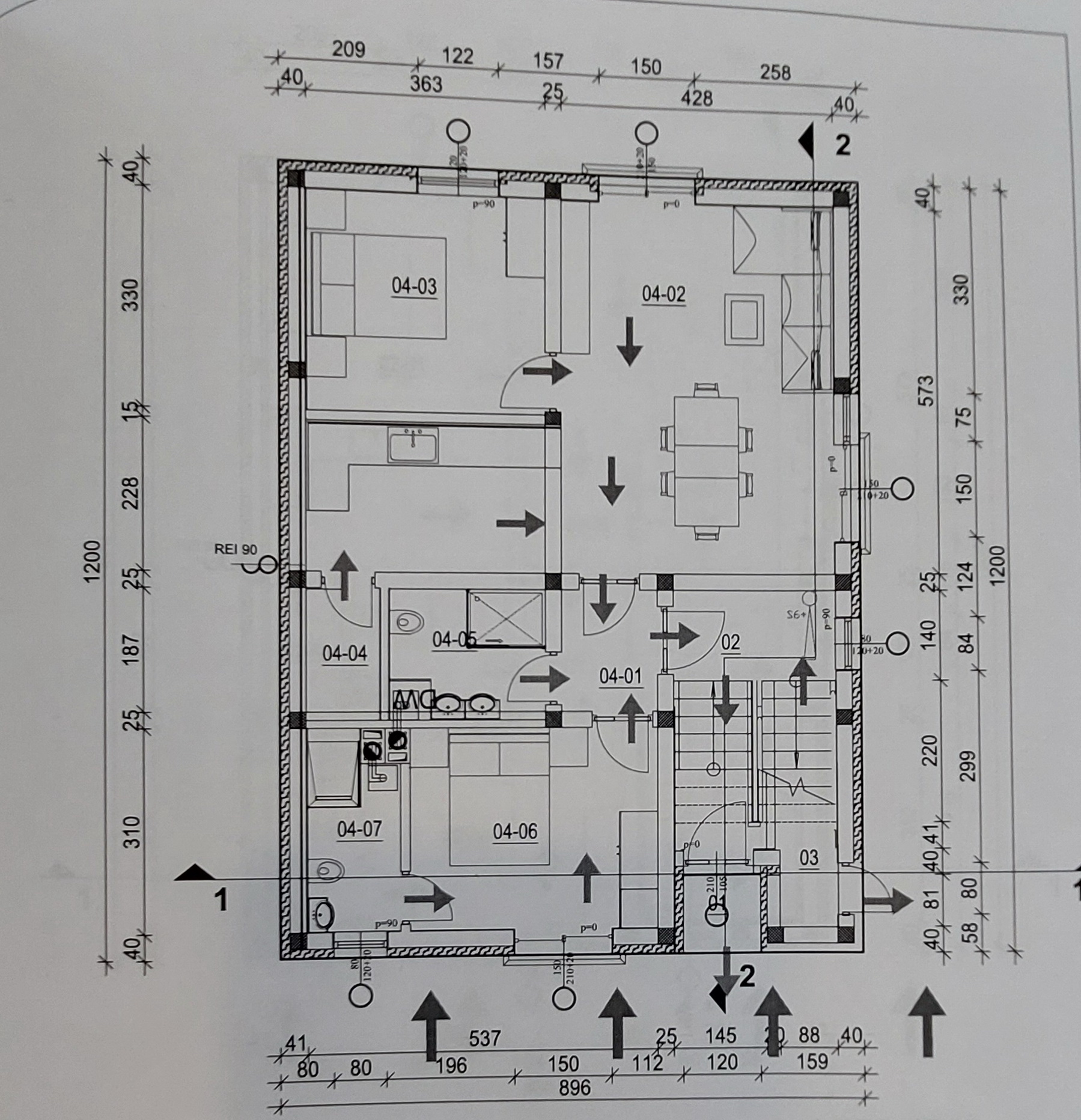
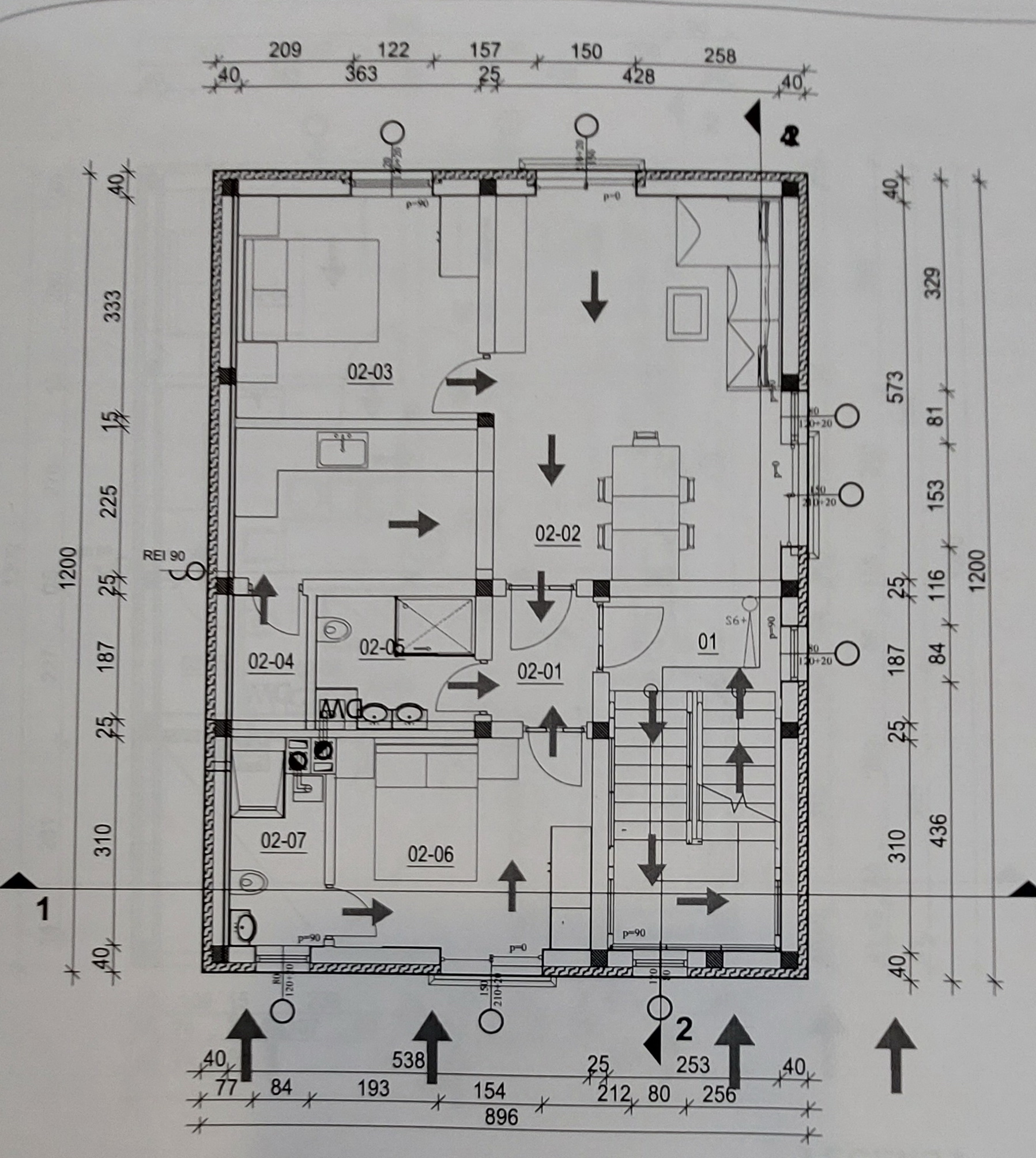
ground floor, first floor and second floor (retracted floor) gross area of 294.03 m2 with three residential units.
The construction of a semi-finished residential building with 3 (three) residential units, height:
ground floor, 1st floor and 2nd floor (retracted floor), complies with the specified urban rule:
- the area of the building plot is 301 m²
- purpose: residential building with 3 (three) residential units
- building height: ground floor, 1st floor and 2nd floor (retracted floor)
- gross construction area of the building is 294.03 m²
- the floor area of the building is 107.52 m²
The coefficient of utilisation (ki) is 0,98 (> max. 1,2)
the build-up of the building particle is 35.72% (> max. 40%)
- the area of natural terrain is more than 20%
- the planned residential building is located as semi-built on the south middle, it is: min. 3,00 m away
from the western border, min. 3.06 m from the northern border, and on the east side is min.7.79 m from the reservation line of the street extension.
- traffic at rest is solved with 3 (three) parking spaces on the plot.
Apartment 1 - ground floor - 70 m2
Apartment 2 - first floor — 70 m2
Apartment 3 - second floor — 48 m2
Ownership certificate 1/1 without encumbrance
Agency commission 1% + VAT.
DO YOU WANT TO SELL YOUR HOUSE?
AGENCY SERVICE WHEN SELLING FROM 2%!
More than 27 years of experience in real estate sales!
Fast and safe real estate sale!
Contact us with confidence!
For this property contact the agent Domagoj Miškec
Mob: +385 91 3730 099 - Viber, WhatsApp
Tel: 01 3730 099, 01 3734 793
Email: kontakt@euro-interijeri.hr, domagoj.miskec@euro-interijeri.hr
www.euro-interijeri.hr
Euro-interiors - real estate agency.
Location on the map
Residential units and commercial premises
Licensed Real Estate Agent

.jpg)
.jpg)



