Lease of office space -Zagreb - Jankomir - offices by place of work
Basic information
Description of the property
PRICE ON REQUEST!
If you are interested in this location, please send an e-mail with your data; Name and Surname of contact person, company name, phone/mob.
Beautifully designed sustainable workspace — coming soon!!!
Opening 01.04.2026 year
The construction team is currently working on the construction of this site, another new site in a network of over 4000 sites that allows people around the world to work closer to where they need to be.
All workspaces are designed with professionalism and your productivity in mind.
Office 10.82 m2 - 2 workplaces 626 €/month + VAT!
Office 13,67 m2 - 3 jobs 688 €/month + VAT!
From ergonomic furniture to ambient lighting and all the amenities you will need on site, including common amenities such as kitchens and rest areas. Workspaces are tailored to a variety of work styles, whether you just want to stop by a business lounge, coworking space, or you need an office for a day or a meeting room for an hour.We also have long-term solutions such as offices that come ready to use or you can fully customize them, or a dedicated coworking desk.
Each location can also be used as a mailing address for your business by setting up a virtual office.
When signing the lease agreement, a deposit, the first monthly rent and an activation fee are paid.
Deposit: the deposit increases to double the amount of the monthly rent
- monthly rent; agreed monthly amount
- activation fee; one-time fee of 39 EUR per workstation.
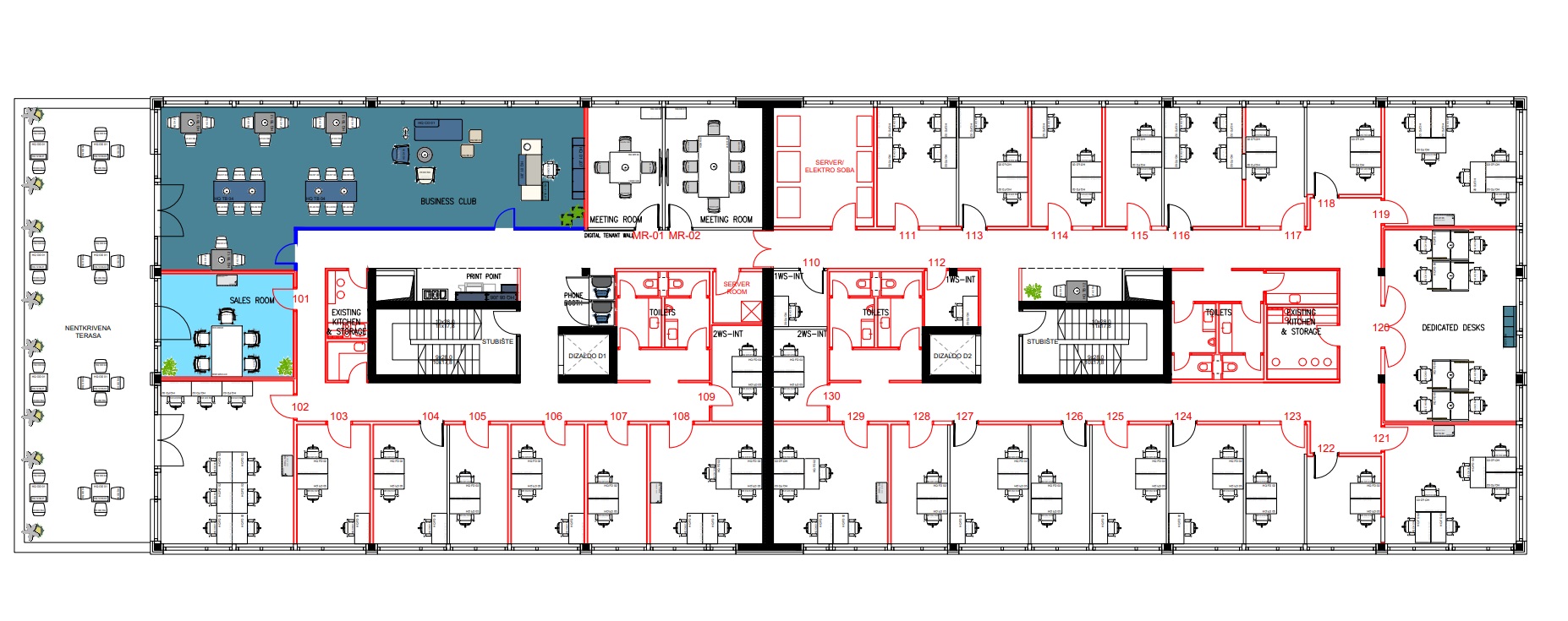
The number of workstations in each office is indicated on the floor plan.
So we have offices from:
1 workplace up to 9 workplaces, several kitchenettes, print point, 2 booths for undisturbed telephone calls, 2 elevators/lifts, 5 toilets m/f, 3 covered terraces, sales room, dedicated desks, meeting room (meeting room smaller and larger), nice big business club.
The reception/center team can welcome your guests, take care of your mail and packages.
As an additional service we offer parking, unlimited coffee/tea, printing, equipped meeting rooms.
Office notice period: 3 months
Office Hours: 24/7
Front desk hours: 8:30 AM - 5:30 PM (Mon-Fri)
Outdoor parking, 40 parking spaces (phase I): 85 EUR/month.
If you are interested in this location, please send an e-mail with your data; Name and Surname of contact person, company name, phone/mob.
Location on the map
Residential units and commercial premises
Licensed Real Estate Agent
.jpg)

.jpg)
.jpg)























.jpg)
.jpg)
