Građevinsko zemljište Perjavica s projektom, 1.705 m2

Cijena:

Osnovne informacije

Lokacija:
Perjavica, Podsused - Vrapče, Zagreb
Godina izgradnje:
Stambena površina:
1705
m2
Vanjska površina:
Tip:
Ukupni broj katova zgrade:
Pozicija poslovnog prostora:
Kat:
Broj etaža:
Tip kuće:
Vrsta:
Broj soba:
100
Broj kupaonica:
Namještenost i stanje:
Prilaz - asfaltirani
Parkirno mjesto:
Energetski razred:
Mogućnost zamjene:
Agencijska usluga:
NE NAPLAĆUJEMO PROVIZIJU OD KUPCA
Garaža:
Vrt:
Spremište:
Grijanje:
Vlasnička dokumentacija:
Orijentacija:

Opis nekretnine

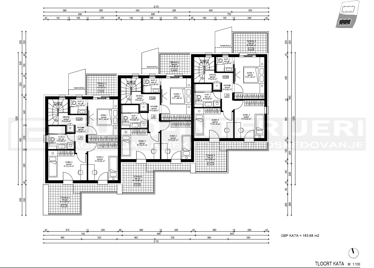
Građevinsko zemljište površine 1.705 m² u ulici Perjavica. Karakteristike zemljišta: Ukupna površina: 1.705 m² Moguća gradnja 2 zgrade na razdvojene 2. parcele. Svaka zgrada ima mogućnost gradnje do 400 m² bruto površine (GBP). Maksimalno 3 stana po zgradi. Po idejnom projektu moguće je 775 m2 netto. Dodatne prednosti: Svaka stambena jedinica uključuje; vrt, 1 parkirno i jedno garažno mjesto. Ukupno 387 m² neto korisne površine (NKP) raspoređeno u 3 stana x 2x = 775 m2. Idealno za razvoj stambenog naselja od 12. kuća gdje je prvih 6. izgrađeno na gradilištu pored. Lokacija: zemljište je smješteno u prometno dobro povezanom dijelu, a istovremeno nudi mirnu okolinu za udoban život. Idealno za investitore ili one koji žele realizirati projekt stanovanja u mirnom okruženju s odličnom prometnom povezanošću. Početak gradnje je drugom polovinom 2025. godine. ŽELITE LI PRODATI SVOJU NEKRETNINU? AGENCIJSKA USLUGA KOD PRODAJE VEĆ OD 2%! Više od 27 godina iskustva u prodaji nekretnina! Brza i sigurna prodaja! Obratite nam se s povjerenjem!

Lokacija na mapi

Licencirani agent za nekretnine
Ostavite nam poruku
Hvala! Vaš upit je uspješno poslan.
Nešto je pošlo po krivu. Molimo Vas da nas kontaktirate na drugi način ili pokušate ponovno

Stambene jedinice i poslovni prostori

Sobnost
Površina
Kat
Cijena (m2)
Cijena
Status
No items found.
Licencirani agent za nekretnine
Ostavite nam poruku
Hvala! Vaš upit je uspješno poslan.
Nešto je pošlo po krivu. Molimo Vas da nas kontaktirate na drugi način ili pokušate ponovno

Slične nekretnine

Građevinsko zemljište, Lučice - Polane 3.366 m2, BEZ PROVIZIJE
3366
100
Građevinsko zemljište, Lapat, 1.776 m2, bez provizije!
1427
100
Zemljište sa građevinskom dozvolom Šmrika, pov. 399 m2
399
100