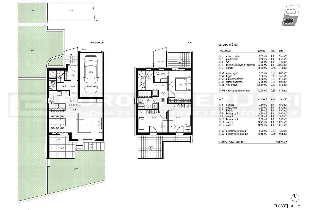
Kuće u nizu Zagreb Perjavica 130,22 m2 novogradnja bez provizije!

Cijena:

Osnovne informacije

Lokacija:
Perjavica, Podsused - Vrapče, Zagreb
Godina izgradnje:
Stambena površina:
130
m2
Vanjska površina:
129
Tip:
Ukupni broj katova zgrade:
Pozicija poslovnog prostora:
Kat:
Broj etaža:
Tip kuće:
U nizu
Vrsta:
Broj soba:
4
Broj kupaonica:
2
Namještenost i stanje:
Nenamješteno
Parkirno mjesto:
Energetski razred:
A
Mogućnost zamjene:
Agencijska usluga:
NE NAPLAĆUJEMO PROVIZIJU OD KUPCA
Garaža:
Da
Vrt:
Da
Spremište:
Grijanje:
Klima uređaj,Dizalica topline
Vlasnička dokumentacija:
Orijentacija:

Opis nekretnine

Perjavica - prodaja kuća u nizu - Lovački put 130,22 m2, garaža, vanjsko parkirno mjesto, vrt - novogradnja bez provizije! Stambena jedinica nalazi se u sklopu projekta 12 kuća u nizu s modernom arhitekturom i vrtom u naselju Stenjevec za miran obiteljski život, križanje Lovačkog puta i Perjavice. U prvoj fazi gradnje prodano je prvih šest kuća!!! NOVI PROJEKT SA 6 kuća u nizu na zemljištu pored počinje 7/2025. godine, a rezervacije su u tijeku!!! Stambena građevina predviđena je kao dvoetažna sa pripadajućim vrtom, te su pojedine funkcije iste vertikalno razložene (kuće tipa dupleks): - prizemlje (Pr) garaža, ulazni prostor sa stubištem, dnevni boravak, blagovanje, kuhinja, wc - uvučeni kat (Uk) stubište sa predprostorom, dvije kupaonice, tri sobe i terase - svaka stambena jedinica imati će vanjsko parkirno mjesto i vrt OPREMA: - Prvoklasna PVC stolarija REHAU profili sa antracit bojom vani, unutra bijelo - Atestirana protuprovalna ulazna vrata po kućama - Završne obloge podova gotovi elegantni 3-slojni parket i keramika 1. klase izvedeni na slojevima plivajućeg poda kao zaštita od prijenosa buke - Prijenos buke među kućama i od/prema zajedničkim prostorima zgrade riješen je zvučnom izolacijom - Balkoni u svakoj kući i na terasama su obloženi protukliznim keramičkim pločicama 1. klase - Krov građevine je neprohodni ravni za završnim slojem od šljunka - Osnovni konstruktivni sustav građevine sastoji se od uzdužnih i poprečnih armiranobetonskih i zidanih zidova u oba smjera koji preuzimaju vertikalna opterećenja i horizontalno djelovanje sila potresa - Pregradni zidovi bit će gipskartonski (sustav tipa 'knauf') - Unutarnji otvori građevine izvedeni su od drvene stolarije, bajcane i lakirane bezbojnim lakom. - Zaštita od sunca bit će riješena roletama - Dizalice topline sa podnim grijanjem marke BOSCH - Klima sistem u svakoj kući proizvođača BOSCH - Ugradbeni wc sistem GEBERIT sa visećim školjkama LAUFEN - Walk in tuš sistem u razini poda sa staklenom pregradom - Toplinska fasada stiropor (15 cm)- Video portafoni Bez naknade za kupca, uz besplatnu pravnu podršku. Zgrada u sustavu PDV-a (kupac ne plaća porez). Ako želite intimu kuće sa dvorištem, visoke kvalitete gradnje, s malom potrošnjom grijanja/hlađenja, ovo je prilika za investiranje. U neposrednoj blizini nalaze se supermarketi KONZUM i SPAR, dvije osnovne škole i vrtići. Ova lokacija je također u blizini javnog gradskog prijevoza. Autobusna stanica za liniju 137 (Črnomerec – Perjavica) nalazi se na udaljenosti od svega 50 metara. Kupac ne plaća agencijsku uslugu! ‍ŽELITE LI PRODATI SVOJU NEKRETNINU? AGENCIJSKA USLUGA KOD PRODAJE VEĆ OD 2%! Više od 27 godina iskustva u prodaji nekretnina! Brza i sigurna prodaja nekretnina! Obratite nam se s povjerenjem!

Lokacija na mapi

Licencirani agent za nekretnine
Ostavite nam poruku
Hvala! Vaš upit je uspješno poslan.
Nešto je pošlo po krivu. Molimo Vas da nas kontaktirate na drugi način ili pokušate ponovno

Stambene jedinice i poslovni prostori

Sobnost
Površina
Kat
Cijena (m2)
Cijena
Status
No items found.
Licencirani agent za nekretnine
Ostavite nam poruku
Hvala! Vaš upit je uspješno poslan.
Nešto je pošlo po krivu. Molimo Vas da nas kontaktirate na drugi način ili pokušate ponovno

Slične nekretnine

Prodaja kuće - Vrapčanska ulica - Vrapče - 178 m2
178
6
Kuće u nizu Zagreb Perjavica 130,22 m2 novogradnja bez provizije!
130
4
Kuća u nizu Zagreb, Perjavica, 131,56 m2, novogradnja bez provizije!
131
4