Primošten - zemljište 2.288 m² s građevinskom dozvolom
Osnovne informacije
Opis nekretnine
Prodajemo zemljište površine 2.288 m² s pravomoćnom građevinskom dozvolom za gradnju dva objekta
Zemljište se sastoji od tri čestice, 613 m², 774 m² građevinsko i 901 m² poljoprivredno.
Primošten - Kamenarska ulica.
Sa zemljišta je pogled na more, Primošten i Kornate.
Plaćen je komunalni doprinos i priključak na vodovod.
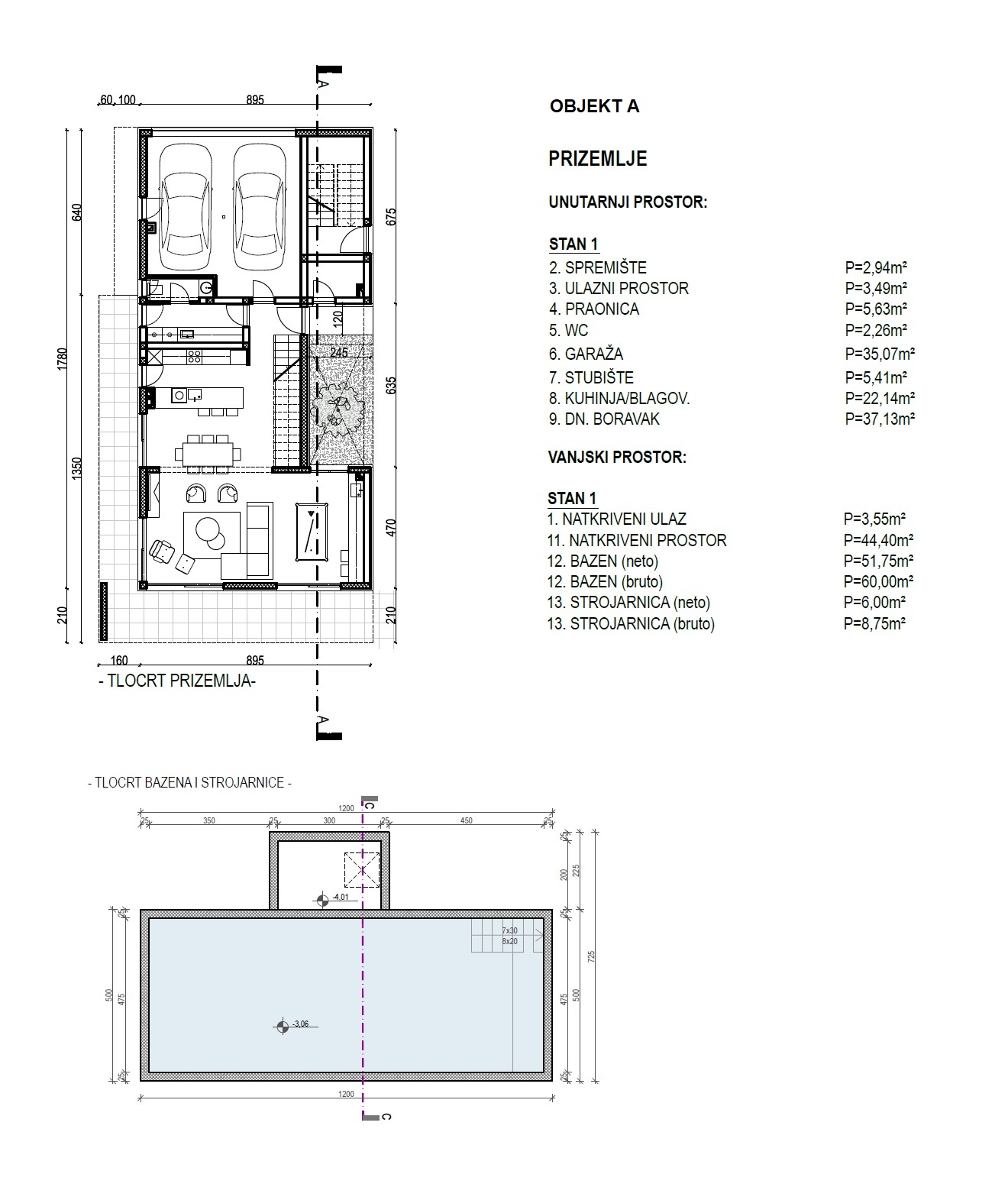
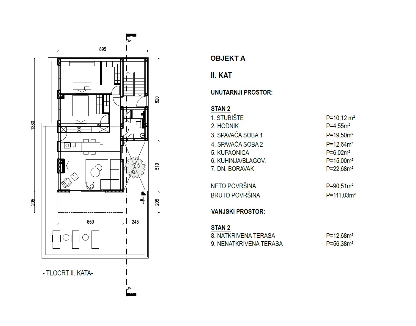
Objekt A:
Stan 1 - dvoetažan (prizemlje i prvi kat) s bazenom i garažom.
Stan 2 - jednoetažan na drugome katu.
Objekt B:
dvoetažan stan s bazenom i garažom
Moguća kompenzacija za stan u Primoštenu, Rovinju, Zagrebu od cca. 70-80 m² sa parkingom / garažom ili zemljiste od 700m² u Zagrebu.
Vlasnički list bez tereta.
NAPOMENA: mogućnost kupnje susjednog zemljišta površine 1.166 m² po cijeni od: 250 €/m².
Agencijska provizija iznosi 1,5% + PDV od cijene.
Za ovu nekretninu kontaktirati agenta s položenim stručnim ispitom Domagoj Miškec
Mob: +385 91 3730 099 - Viber, WhatsApp
Tel: 01 3730 099, 01 3734 793
E-mail: kontakt@euro-interijeri.hr, domagoj.miskec@euro-interijeri.hr
www.euro-interijeri.hr
Euro-interijeri - agencija za poslovanje nekretninama.
Sjedište agencije/adresa: Ante Topić Mimare 3a, Zagreb
ŽELITE LI PRODATI SVOJE GRAĐEVINSKO ZEMLJIŠTE?
AGENCIJSKA USLUGA KOD PRODAJE VEĆ OD 2%!
Više od 28 godina iskustva u prodaji nekretnina!
Brza i sigurna prodaja nekretnina!
Obratite nam se s povjerenjem!
Lokacija na mapi
Stambene jedinice i poslovni prostori
Licencirani agent za nekretnine

.jpg)
.jpg)
.jpg)





-p-500.jpg)
-p-500.jpg)
