Stan: Zagreb, 143.28 m2, novogradnja, BEZ AGENCIJSKE PROVIZIJE

Cijena:

Osnovne informacije

Lokacija:
Ribnjak, Gornji Grad - Medveščak, Zagreb
Godina izgradnje:
2023
Stambena površina:
143
m2
Vanjska površina:
Tip:
U stambenoj zgradi
Ukupni broj katova zgrade:
5
Pozicija poslovnog prostora:
Kat:
2
Broj etaža:
Tip kuće:
Vrsta:
Broj soba:
5
Broj kupaonica:
3
Namještenost i stanje:
Nenamješteno,Pristup invalidima
Parkirno mjesto:
Energetski razred:
A+
Mogućnost zamjene:
Agencijska usluga:
NE NAPLAĆUJEMO PROVIZIJU OD KUPCA
Garaža:
Vrt:
Spremište:
Da
Grijanje:
Sustav grijanja, klimatizacije i ventilacije,Klima uređaj
Vlasnička dokumentacija:
Orijentacija:

Opis nekretnine

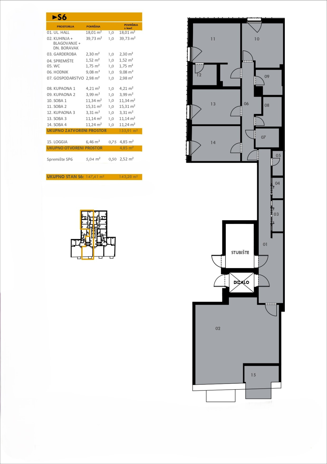
Luksuzan stan u samom centru Zagreba – Vaš dom iz snova! Prodaje se peterosoban stan (S6) na 2. katu moderne zgrade s ukupnom podnom površinom od 140,76 m². Stan se sastoji od: ulaznog halla, prostranog dnevnog boravka povezanog s kuhinjom i blagovaonicom, četiri spavaće sobe, tri potpuno opremljene kupaonice, zasebnog WC-a, garderobe, spremišta, gospodarskog prostora, hodnika Stan ima i loggiu površine 6,46 m², savršenu za opuštanje na otvorenom. Uz stan dolazi i spremište (SP6) u podrumu zgrade, površine 5,04 m², idealno za dodatni prostor za pohranu. Otkrijte ekskluzivnu stambenu zgradu smještenu na prestižnoj lokaciji u centru Zagreba, projektiranu kako bi zadovoljila najviše standarde modernog stanovanja. Zgrada se ističe energetskom učinkovitošću (razred A+), vrhunskom gradnjom i inovativnim rješenjima koja udovoljavaju potrebama suvremenog načina života. Objekt se sastoji od šest nadzemnih etaža i jedne podzemne, gdje su smještena 43 parkirno-garažna mjesta, čime je osiguran prostor za sigurno parkiranje. U zgradi se nalazi ukupno 17 stanova od četverosobnih do šesterosobnih, s dvostrukom orijentacijom koja nudi prozračne i svijetle prostore. Na svakoj etaži od 1. do 4. kata nalaze se po četiri stana, što garantira intimu i mir za svakog stanara. Stanovi su projektirani s posebnom pažnjom na funkcionalnost i udobnost. Prostori dnevnog boravka i blagovaonice smješteni su prema uličnoj strani, s izlazom na loggie (erkeri) koje pružaju spektakularan pogled, dok su spavaće sobe orijentirane prema mirnom dvorištu. Svaki stan ima minimalno 100 kvadrata, što omogućava prostranost i udobnost u svakodnevnom životu. Ono što čini ove stanove iznimno posebnima jest vrhunska oprema i sofisticirana tehnologija koja prelazi standardne granice luksuza. Crestron Smart Home sustav, implementiran u svaki stan, nudi jednostavnost upravljanja rasvjetom, klimatizacijom, sigurnosnim sustavima i multimedijom, pružajući Vam maksimalnu funkcionalnost i udobnost. S mogućnošću upravljanja putem mobilnih uređaja, Crestron otvara vrata budućnosti, omogućujući Vam životni stil kakav ste oduvijek željeli – moderan, siguran i praktičan. Zgrada se nalazi u neposrednoj blizini svih važnih sadržaja, uključujući vrtiće, škole, trgovine, restorane i kulturne objekte, čime se omogućava potpuna integracija u gradski život, uz privatnost i luksuz koji Vaš dom pruža. Ne propustite priliku za savršen dom! Ovaj jedinstveni projekt savršeno spaja vrhunski dizajn, funkcionalnost i tehnologiju. Stanovi su spremni za useljenje, a broj stanova je ograničen. Kontaktirajte nas i osigurajte sebi luksuzan život u srcu Zagreba! Bez agencijske provizije – izvrsna prilika! Za više informacija ili dogovor za razgledavanje, kontaktirajte nas već danas. ŽELITE LI PRODATI SVOJ STAN? AGENCIJSKA USLUGA KOD PRODAJE STANA VEĆ OD 2%! Više od 27 godina iskustva u prodaji stanova! Brza i sigurna prodaja stana! Obratite nam se s povjerenjem!

Lokacija na mapi

Licencirani agent za nekretnine
Ostavite nam poruku
Hvala! Vaš upit je uspješno poslan.
Nešto je pošlo po krivu. Molimo Vas da nas kontaktirate na drugi način ili pokušate ponovno

Stambene jedinice i poslovni prostori

Sobnost
Površina
Kat
Cijena (m2)
Cijena
Status
No items found.
Licencirani agent za nekretnine
Ostavite nam poruku
Hvala! Vaš upit je uspješno poslan.
Nešto je pošlo po krivu. Molimo Vas da nas kontaktirate na drugi način ili pokušate ponovno

Slične nekretnine

Stan u centru Zagreba, 140 m2, novogradnja, BEZ AGENCIJSKE PROVIZIJE
140
4
5
Stan: Zagreb, 143.28 m2, novogradnja, BEZ AGENCIJSKE PROVIZIJE
143
2
5
Stan: Zagreb, Perjavica, 131.56 m2, novogradnja bez provizije!
131
4