Vile Čilipi/Konavle, u ROH-BAU 322 m2, investicijski projekt

Cijena:

Osnovne informacije

Lokacija:
Čilipi, Konavle
Godina izgradnje:
Stambena površina:
322
m2
Vanjska površina:
576
Tip:
Ukupni broj katova zgrade:
Pozicija poslovnog prostora:
Kat:
Broj etaža:
Tip kuće:
Vrsta:
Apartman
Broj soba:
5
Broj kupaonica:
Namještenost i stanje:
Parkirno mjesto:
Energetski razred:
Mogućnost zamjene:
Agencijska usluga:
Garaža:
Vrt:
Spremište:
Grijanje:
Klima uređaj
Vlasnička dokumentacija:
Orijentacija:

Opis nekretnine

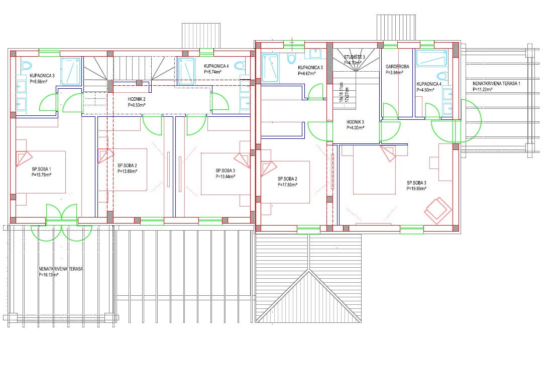
Projekt Villa Konavle sastoji se od dvije dvojne i četiri samostojeće vile sa bazenima, vile su projektirane prema tradicionalnoj konavoskoj arhitekturi i mediteranskom stilu, dok je istovremeno sadržaj interijera i eksterijera vođen željama i zahtjevima modernog europskog kupca. Kuće su projektirane za stanovanje i imaju predviđen podrum. Završetak gradnje kraj 2024. godine, kuće se prodaju u visokom ROH-BAU. Kuća 1: objekt neto korisna površina 322,12 od toga bazen 29,13 na zemljištu površine 576m2. Kuća 2: objekt neto korisna površina 316,57 m2 od toga bazen 23,58 m2 na zemljištu površine 485m2. Kuća 3: objekt neto korisna površina 341,91 od toga bazen 27,35 m2 na zemljištu površine 525m2. Kuća 4: objekt neto korisna površina 260,58 od toga bazen 21,89 m2 na zemljištu površine 389m2. Kuća 5: objekt neto korisna površina 315,92 od toga bazen 22,93 m2 na zemljištu površine 378m2. Kuća 6: objekt neto korisna površina 358,84 od toga bazen 30,97 na zemljištu površine 520m2. Sve kuće i pristupne ceste imaju pravomoćne građevinske dozvole. Završetak gradnje kraj 2024. godine, kuće se prodaju u visokom ROH-BAU. Zračna luka Dubrovnik i Jadranska magistrala u neposrednoj su blizini, dok je Cavtat, kao pomorska luka i autohtoni jadranski gradić, udaljen manje od 7 kilometara. Konfiguracija prostora Konavala je posebna; to je plodna i vodorodna dolina što se pruža od sjeverozapada prema jugoistoku, u dužini do 35 km i širini do 12 km. S brdske strane graniči obroncima Snježnice (visina 1234 m) prema BiH i Bjelotine prema Crnoj Gori, te s morske strane strmim stijenama od luke Cavtat do Molunta i poluotoka Prevlake (Rt Oštro). Zapadni, najuži prijelaz u Konavle je s prostora naselja Oboda i Cavtata, a južni je visinom brda Kobile na uvalu u Bokokotorskom zaljevu. Morske i kopnene prostore sa zapada oblikuje Župski zaljev – zaljev Cavtata s poluotocima i otočićima, a prema jugu poluotok Molunat s dvjema uvalama i dva otoka, te konačno poluotok Prevlaka. Općina Konavle proteže se na površini od 209,25 km2, obuhvaća 33 naselja sa oko 9.500 stanovnika, a sjedište Općine je u Cavtatu. Udaljenosti: Cavtat 7 km Najbliža prodavaonica Pemo Ćilipi 1 km, na drugu stranu je malo veća prodavaonica i skoro pa ista udaljenost 1 km Zračna luka manje od 1 km. U okviru kompleksa na ZLD se nalazi ambulanta i Hitna pomoć Konavle. Zračna luka Dubrovnik ima dostupne višekratne dnevne veze sa Gradovima u Europi. Grad Dubrovnik 20 km Opća bolnica Dubrovnik 23 km Ulaz u Stari grad – Pile 22 km Na cca polovini puta parcela Grad – parcela (u Župi dubrovačkoj) je mali shoping centar – blizu hotela Sheraton u Srebrenom. Više od 27 godina iskustva u poslovanju nekretninama garancija je da nam se obratite s punim povjerenjem!

Lokacija na mapi

Licencirani agent za nekretnine
Ostavite nam poruku
Hvala! Vaš upit je uspješno poslan.
Nešto je pošlo po krivu. Molimo Vas da nas kontaktirate na drugi način ili pokušate ponovno

Stambene jedinice i poslovni prostori

Sobnost
Površina
Kat
Cijena (m2)
Cijena
Status
No items found.
Licencirani agent za nekretnine
Ostavite nam poruku
Hvala! Vaš upit je uspješno poslan.
Nešto je pošlo po krivu. Molimo Vas da nas kontaktirate na drugi način ili pokušate ponovno

Slične nekretnine

Vile Čilipi/Konavle, u ROH-BAU 322 m2, investicijski projekt
322
5
Prodaja stana - Opatija - 56 m2 BEZ PROVIZIJE!
56
2
Poslovni prostor: riblji restoran u Skradinu, dvije sale + terasa
135
3