Kuća u nizu Zagreb, Perjavica, 118,29 m2, novogradnja bez provizije!
Cijena:
118
m2
4
Perjavica, Podsused - Vrapče, Zagreb
Osnovne informacije
Lokacija:
Perjavica, Podsused - Vrapče, Zagreb
Godina izgradnje:
2026
Stambena površina:
118
m2
Vanjska površina:
31
Tip:
Ukupni broj katova zgrade:
Pozicija poslovnog prostora:
Kat:
Broj etaža:
Tip kuće:
U nizu
Vrsta:
Broj soba:
4
Broj kupaonica:
2
Namještenost i stanje:
Nenamješteno
Parkirno mjesto:
Energetski razred:
A
Mogućnost zamjene:
Agencijska usluga:
NE NAPLAĆUJEMO PROVIZIJU OD KUPCA
Garaža:
Da
Vrt:
Da
Spremište:
Grijanje:
Centralno etažno plinsko,Klima uređaj
Vlasnička dokumentacija:
Orijentacija:
Opis nekretnine
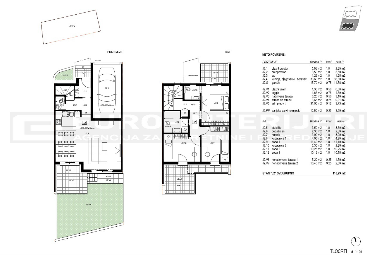
Perjavica - prodaja kuće u nizu - Lovački put 118,29 m2, garaža, vanjsko parkirno mjesto, vrt - novogradnja bez provizije!
Stambena jedinica nalazi se u sklopu projekta 12 kuća u nizu s modernom arhitekturom i vrtom u naselju Stenjevec za miran obiteljski život, križanje Lovačkog puta i Perjavice.
U prvoj fazi gradnje prodano je prvih šest kuća!!!
NOVI PROJEKT SA 6 kuća u nizu na zemljištu pored počinje drugom polovicom 2025. godine, a rezervacije su u tijeku!!!
Stambena građevina predviđena je kao dvoetažna sa pripadajućim vrtom, te su pojedine funkcije iste vertikalno razložene (kuće tipa dupleks):
- prizemlje (Pr) garaža, ulazni prostor sa stubištem, dnevni boravak, blagovanje, kuhinja, wc
- uvučeni kat (Uk) stubište sa predprostorom, dvije kupaonice, tri sobe i terase
- svaka stambena jedinica imati će vanjsko parkirno mjesto i vrt
OPREMA:
- Prvoklasna PVC stolarija REHAU profili sa antracit bojom vani, unutra bijelo
- Atestirana protuprovalna ulazna vrata po kućama
- Završne obloge podova gotovi elegantni 3-slojni parket i keramika 1. klase izvedeni na slojevima plivajućeg poda kao zaštita od prijenosa buke
- Prijenos buke među kućama i od/prema zajedničkim prostorima zgrade riješen je zvučnom izolacijom
- Balkoni u svakoj kući i na terasama su obloženi protukliznim keramičkim pločicama 1. klase
- Krov građevine je neprohodni ravni za završnim slojem od šljunka
- Osnovni konstruktivni sustav građevine sastoji se od uzdužnih i poprečnih armiranobetonskih i zidanih zidova u oba smjera koji preuzimaju vertikalna opterećenja i horizontalno djelovanje sila potresa
- Pregradni zidovi bit će gipskartonski (sustav tipa 'knauf')
- Unutarnji otvori građevine izvedeni su od drvene stolarije, bajcane i lakirane bezbojnim lakom.
- Zaštita od sunca bit će riješena roletama
- Dizalice topline sa podnim grijanjem marke BOSCH
- Klima sistem u svakoj kući proizvođača BOSCH
- Ugradbeni wc sistem GEBERIT sa visećim školjkama LAUFEN
- Walk in tuš sistem u razini poda sa staklenom pregradom
- Toplinska fasada stiropor (15 cm)- Video portafoni
Bez naknade za kupca, uz besplatnu pravnu podršku. Zgrada u sustavu PDV-a (kupac ne plaća porez).
Ako želite intimu kuće sa dvorištem, visoke kvalitete gradnje, s malom potrošnjom grijanja/hlađenja, ovo je prilika za investiranje.
U neposrednoj blizini nalaze se supermarketi KONZUM i SPAR, dvije osnovne škole i vrtići. Ova lokacija je također u blizini javnog gradskog prijevoza. Autobusna stanica za liniju 137 (Črnomerec – Perjavica) nalazi se na udaljenosti od svega 50 metara.
Kupac ne plaća agencijsku uslugu!
ŽELITE LI PRODATI SVOJU NEKRETNINU?
AGENCIJSKA USLUGA KOD PRODAJE VEĆ OD 2%!
Više od 27 godina iskustva u prodaji nekretnina!
Brza i sigurna prodaja nekretnina!
Obratite nam se s povjerenjem!
Lokacija na mapi
Stambene jedinice i poslovni prostori
Sobnost
Cijena
Status
No items found.
Licencirani agent za nekretnine
