Stan u Zagrebu, Stenjevec, četverosoban 153.34 m2, 2. kat novogradnja

Cijena:

Osnovne informacije

Lokacija:
Stenjevec, Zagreb
Godina izgradnje:
2026
Stambena površina:
153
m2
Vanjska površina:
Tip:
U stambenoj zgradi
Ukupni broj katova zgrade:
3
Pozicija poslovnog prostora:
Kat:
2
Broj etaža:
Tip kuće:
Vrsta:
Broj soba:
4
Broj kupaonica:
1
Namještenost i stanje:
Nenamješteno,Pristup invalidima
Parkirno mjesto:
Energetski razred:
A
Mogućnost zamjene:
Agencijska usluga:
Garaža:
Da
Vrt:
Spremište:
Da
Grijanje:
Centralno etažno plinsko,Klima uređaj
Vlasnička dokumentacija:
Orijentacija:

Opis nekretnine

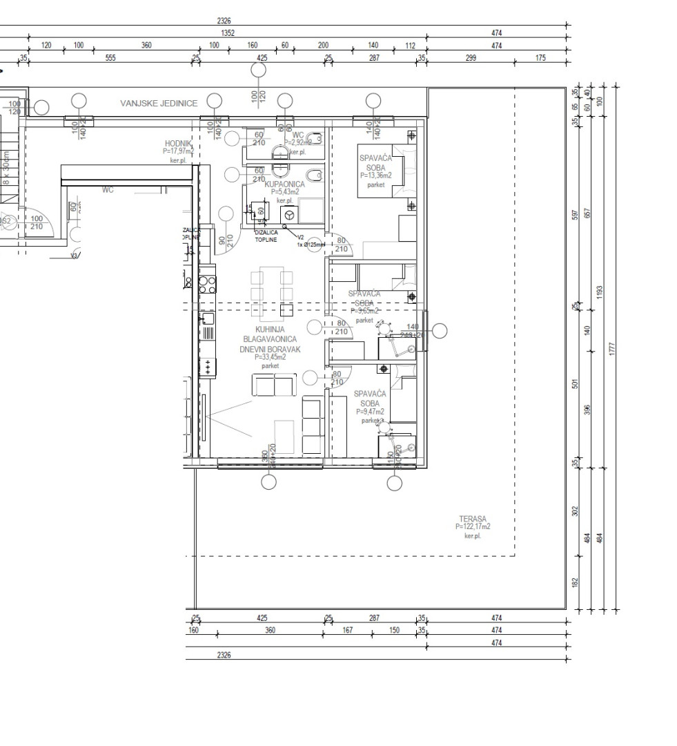
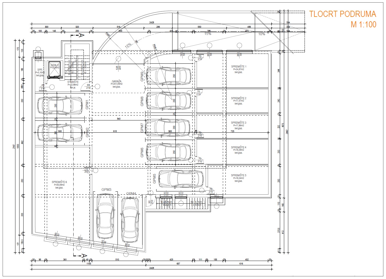
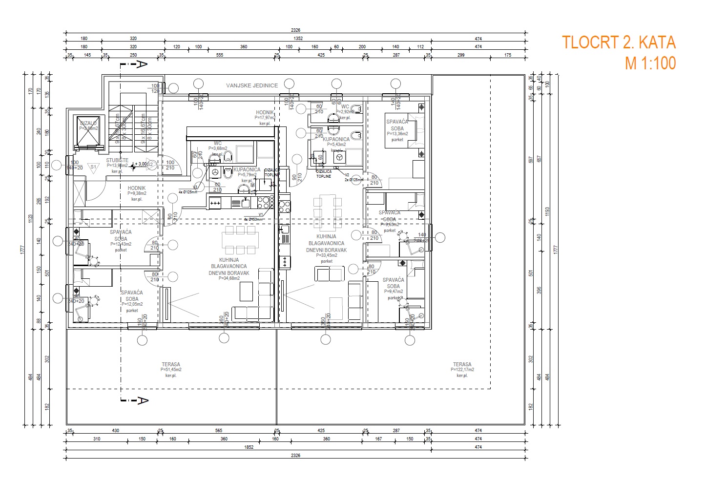
Prodajemo četverosoban stanu u novogradnji na 2. katu zgrade, naselje Stenjevec - Gajnice PRVI KAT Stan S-4 sastoji se od; hodnik, dnevni boravak s kuhinjom i blagovaonicom, 3 sobe, kupaonica, zasebni WC, natkrivena terasa. POVRŠINE: - ulazni hodnik 17,97 m2 - dn. boravak, blagovaonica i kuhinja 33,45 m2 - kupaonica 5,43 m2 - WC 2,92 m2 - spavaća soba 13,36 m2 - spavaća soba 9,65 m2 - spavaća soba 9,47 m2 - natkrivena terasa (122,17 m2) obračunski 61,09 m2 ‍UKUPNA POVRŠINA STANA iznosi 153,34 m2 ‍Obvezna kupnja garažnog parkirnog mjesta i spremišta. Započela je gradnja stambene zgrade koja se gradi u naselju Stenjevec - Gajnice. Predviđen završetak gradnje i useljenje krajem 2026 godine. ‍ Za sve detalje kao i za cijenu organiziramo sastanak sa investitorom. ‍ NOVI PROJEKT 5 stanova PODRUM: garažno parkirna mjesta i spremišta PRIZEMLJE: poslovni prostor i parkirna mjesta PRVI KAT; dva stana – trosoban i četverosoban DRUGI KAT: dva stana – trosoban i četverosoban TREĆI/UVUČENI KAT: četverosoban stan PENTHOUSE 164 m2 DIZALO/LIFT od podruma do trećeg kata. ŽELITE LI PRODATI SVOJ STAN? AGENCIJSKA USLUGA KOD PRODAJE STANA VEĆ OD 2%! Više od 27 godina iskustva u prodaji stanova! Brza i sigurna prodaja stana! Obratite nam se s povjerenjem!

Lokacija na mapi

Licencirani agent za nekretnine
Ostavite nam poruku
Hvala! Vaš upit je uspješno poslan.
Nešto je pošlo po krivu. Molimo Vas da nas kontaktirate na drugi način ili pokušate ponovno

Stambene jedinice i poslovni prostori

Sobnost
Površina
Kat
Cijena (m2)
Cijena
Status
No items found.
Licencirani agent za nekretnine
Ostavite nam poruku
Hvala! Vaš upit je uspješno poslan.
Nešto je pošlo po krivu. Molimo Vas da nas kontaktirate na drugi način ili pokušate ponovno

Slične nekretnine

Stan u centru Zagreba, 140 m2, novogradnja, BEZ AGENCIJSKE PROVIZIJE
140
4
5
Stan: Zagreb, 143.28 m2, novogradnja, BEZ AGENCIJSKE PROVIZIJE
143
2
5
Stan: Zagreb, Perjavica, 131.56 m2, novogradnja bez provizije!
131
4