Stan: Zagreb, 5-s pov. 143.28 m2, useljiva novogradnja, BEZ PROVIZIJE
Cijena:
143
m2
2
5
Ribnjak, Gornji Grad - Medveščak, Zagreb
Osnovne informacije
Lokacija:
Ribnjak, Gornji Grad - Medveščak, Zagreb
Godina izgradnje:
2023
Stambena površina:
143
m2
Vanjska površina:
Tip:
U stambenoj zgradi
Ukupni broj katova zgrade:
5
Pozicija poslovnog prostora:
Kat:
2
Broj etaža:
Tip kuće:
Vrsta:
Broj soba:
5
Broj kupaonica:
2
Namještenost i stanje:
Nenamješteno,Pristup invalidima
Parkirno mjesto:
Energetski razred:
A+
Mogućnost zamjene:
Agencijska usluga:
NE NAPLAĆUJEMO PROVIZIJU OD KUPCA
Garaža:
Vrt:
Spremište:
Da
Grijanje:
Klima uređaj,Dizalica topline
Vlasnička dokumentacija:
Orijentacija:
Opis nekretnine
USELJIV luksuzan stan u samom centru Zagreba – Vaš dom iz snova!
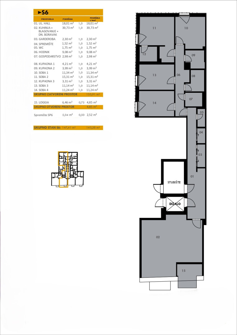
Prodaje se peterosoban stan (S6) na 2. katu moderne zgrade s ukupnom podnom površinom od 140,76 m².
Stan se sastoji od:
ulaznog halla, prostranog dnevnog boravka povezanog s kuhinjom i blagovaonicom, četiri spavaće sobe, tri potpuno opremljene kupaonice, zasebnog WC-a, garderobe, spremišta, gospodarskog prostora, hodnika
Stan ima i loggiu površine 6,46 m², savršenu za opuštanje na otvorenom.
Uz stan dolazi i spremište (SP6) u podrumu zgrade, površine 5,04 m², idealno za dodatni prostor za pohranu.
Otkrijte ekskluzivnu stambenu zgradu smještenu na prestižnoj lokaciji u centru Zagreba, projektiranu kako bi zadovoljila najviše standarde modernog stanovanja. Zgrada se ističe energetskom učinkovitošću (razred A+), vrhunskom gradnjom i inovativnim rješenjima koja udovoljavaju potrebama suvremenog načina života.
Objekt se sastoji od šest nadzemnih etaža i jedne podzemne, gdje su smještena 43 parkirno-garažna mjesta, čime je osiguran prostor za sigurno parkiranje. U zgradi se nalazi ukupno 17 stanova od četverosobnih do šesterosobnih, s dvostrukom orijentacijom koja nudi prozračne i svijetle prostore. Na svakoj etaži od 1. do 4. kata nalaze se po četiri stana, što garantira intimu i mir za svakog stanara.
Stanovi su projektirani s posebnom pažnjom na funkcionalnost i udobnost. Prostori dnevnog boravka i blagovaonice smješteni su prema uličnoj strani, s izlazom na loggie (erkeri) koje pružaju spektakularan pogled, dok su spavaće sobe orijentirane prema mirnom dvorištu. Svaki stan ima minimalno 100 kvadrata, što omogućava prostranost i udobnost u svakodnevnom životu.
Ono što čini ove stanove iznimno posebnima jest vrhunska oprema i sofisticirana tehnologija koja prelazi standardne granice luksuza. Crestron Smart Home sustav, implementiran u svaki stan, nudi jednostavnost upravljanja rasvjetom, klimatizacijom, sigurnosnim sustavima i multimedijom, pružajući Vam maksimalnu funkcionalnost i udobnost. S mogućnošću upravljanja putem mobilnih uređaja, Crestron otvara vrata budućnosti, omogućujući Vam životni stil kakav ste oduvijek željeli – moderan, siguran i praktičan.
Zgrada se nalazi u neposrednoj blizini svih važnih sadržaja, uključujući vrtiće, škole, trgovine, restorane i kulturne objekte, čime se omogućava potpuna integracija u gradski život, uz privatnost i luksuz koji Vaš dom pruža.
Ne propustite priliku za savršen dom! Ovaj jedinstveni projekt savršeno spaja vrhunski dizajn, funkcionalnost i tehnologiju. Stanovi su spremni za useljenje, a broj stanova je ograničen. Kontaktirajte nas i osigurajte sebi luksuzan život u srcu Zagreba!
Bez agencijske provizije – izvrsna prilika!
Za više informacija ili dogovor za razgledavanje, kontaktirajte nas već danas.
ŽELITE LI PRODATI SVOJ STAN?
AGENCIJSKA USLUGA KOD PRODAJE STANA VEĆ OD 2%!
Više od 27 godina iskustva u prodaji stanova!
Brza i sigurna prodaja stana!
Obratite nam se s povjerenjem!
Lokacija na mapi
Stambene jedinice i poslovni prostori
Sobnost
Cijena
Status
No items found.
Licencirani agent za nekretnine
























