Stan: Zagreb, Stenjevec, novogradnja - 3 soban na 2. katu 103,74 m2

Cijena:

Osnovne informacije

Lokacija:
Stenjevec, Zagreb
Godina izgradnje:
2026
Stambena površina:
103
m2
Vanjska površina:
Tip:
U stambenoj zgradi
Ukupni broj katova zgrade:
3
Pozicija poslovnog prostora:
Kat:
2
Broj etaža:
Tip kuće:
Vrsta:
Broj soba:
3
Broj kupaonica:
1
Namještenost i stanje:
Nenamješteno,Pristup invalidima
Parkirno mjesto:
Energetski razred:
A
Mogućnost zamjene:
Agencijska usluga:
Garaža:
Da
Vrt:
Spremište:
Da
Grijanje:
Centralno etažno plinsko,Klima uređaj
Vlasnička dokumentacija:
Orijentacija:

Opis nekretnine

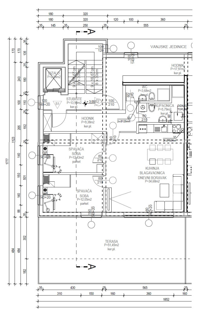
Prodajemo trosoban stanu u novogradnji na 2. katu zgrade, naselje Stenjevec - Gajnice DRUGI KAT Stan S-3 sastoji se od; hodnik, dnevni boravak s kuhinjom i blagovaonicom, 2 sobe, kupaonica, zasebni WC, natkrivena terasa. POVRŠINE: - ulazni hodnik 9,38 m2 - dn. boravak, blagovaonica i kuhinja 34,68 m2 - kupaonica 5,79 m2 - WC 3,68 m2 - spavaća soba 12,43 m2 - spavaća soba 12,05 m2 - natkrivena terasa (51,45 m2) obračunski 25,73 m2 ‍UKUPNA POVRŠINA STANA iznosi 103,74 m2 ‍Obvezna kupnja garažnog parkirnog mjesta i spremišta. Započela je gradnja stambene zgrade koja se gradi u naselju Stenjevec-Gajnice. Predviđen završetak gradnje i useljenje krajem 2026 godine. ‍ Za sve detalje kao i za cijenu organiziramo sastanak sa investitorom. NOVI PROJEKT 5 stanova PODRUM: garažno parkirna mjesta i spremišta. PRIZEMLJE: poslovni prostor i parkirna mjesta. PRVI KAT; dva stana – trosoban 103,74 m2 i četverosoban 153,34 m2. DRUGI KAT: dva stana – trosoban 103,74 m2 i četverosoban 153,34 m2. TREĆI/UVUČENI KAT: četverosoban stan PENTHOUSE 164 m2 DIZALO/LIFT od podruma do trećeg kata. Stanovi na 1. i 2. katu vertikalno su isti, tako da imamo dva trosobna i dva četverosobna stana. ŽELITE LI PRODATI SVOJ STAN? AGENCIJSKA USLUGA KOD PRODAJE STANA VEĆ OD 2%! Više od 27 godina iskustva u prodaji stanova! Brza i sigurna prodaja stana! Obratite nam se s povjerenjem!

Lokacija na mapi

Licencirani agent za nekretnine
Ostavite nam poruku
Hvala! Vaš upit je uspješno poslan.
Nešto je pošlo po krivu. Molimo Vas da nas kontaktirate na drugi način ili pokušate ponovno

Stambene jedinice i poslovni prostori

Sobnost
Površina
Kat
Cijena (m2)
Cijena
Status
No items found.
Licencirani agent za nekretnine
Ostavite nam poruku
Hvala! Vaš upit je uspješno poslan.
Nešto je pošlo po krivu. Molimo Vas da nas kontaktirate na drugi način ili pokušate ponovno

Slične nekretnine

Stan u centru Zagreba, 140 m2, novogradnja, BEZ AGENCIJSKE PROVIZIJE
140
4
5
Stan: Zagreb, 143.28 m2, novogradnja, BEZ AGENCIJSKE PROVIZIJE
143
2
5
Stan: Zagreb, Perjavica, 131.56 m2, novogradnja bez provizije!
131
4